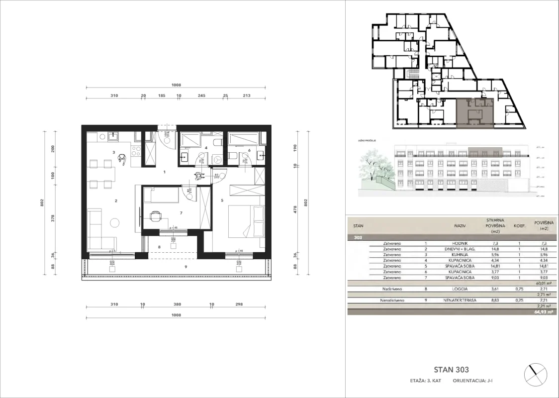
64,93 m2 // trosobni // 3. kat // J-I // €435.031,00
TLOCRT
POVRŠINE
| neto površina [m²] | neto obračunata površina [m²] |
|
| Vrsta | trosobni stan | |
| Hodnik | 7,3 | 7,3 |
| Dnevni boravak + Blagovaona | 14,8 | 14,8 |
| Kuhinja | 5,96 | 5,96 |
| Kupaonica 1 | 4,34 | 4,34 |
| Spavaća soba 1 | 14,81 | 14,81 |
| Kupaonica 1 | 3,77 | 3,77 |
| Spavaća soba 2 | 9,03 | 9,03 |
| UKUPNO | 60,01 | 60,01 |
| Loggia | 3,61 | 2,71 |
| Nenatkrivena terasa | 8,83 | 2,21 |
| UKUPNO | 64,93 |


