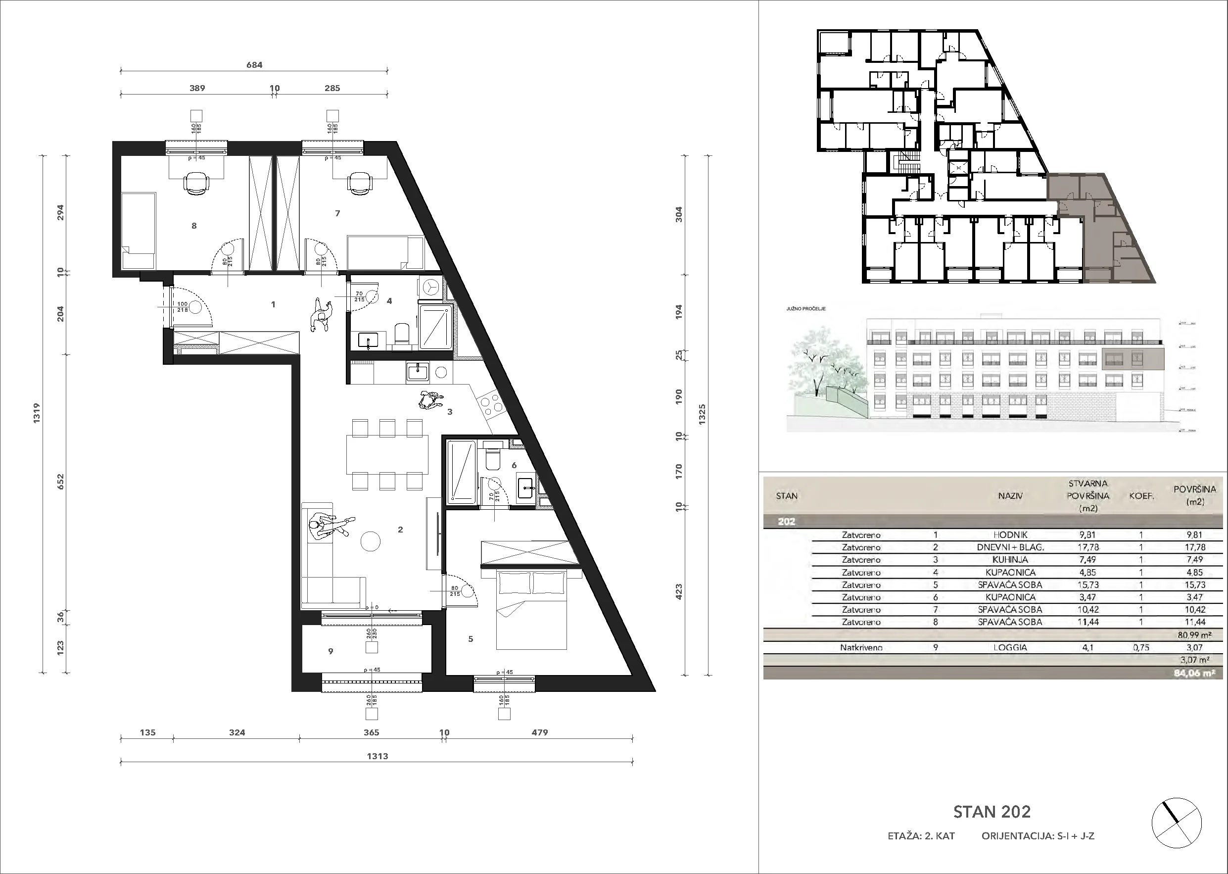
84,06 m2 // četverosobni // 2. kat // S-I + J-Z // €558.999,00
TLOCRT
POVRŠINE
| neto površina [m²] | neto obračunata površina [m²] |
|
| Vrsta | četverosobni stan | |
| Hodnik | 9,81 | 9,81 |
| Boravak + Blagovaona | 17,78 | 17,78 |
| Kuhinja | 7,49 | 7,49 |
| Kupaonica 1 | 4,85 | 4,85 |
| Spavaća soba 1 | 15,73 | 15,73 |
| Kupaonica 2 | 3,47 | 3,47 |
| Spavaća soba 2 | 10,42 | 10,42 |
| Spavaća soba 3 | 11,44 | 11,44 |
| UKUPNO | 80,99 | 80,99 |
| Loggia | 4,1 | 3,07 |
| UKUPNO | 84,06 |


