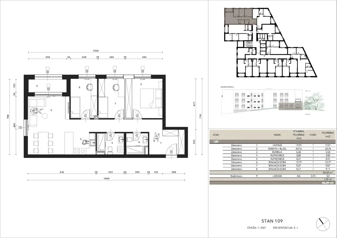
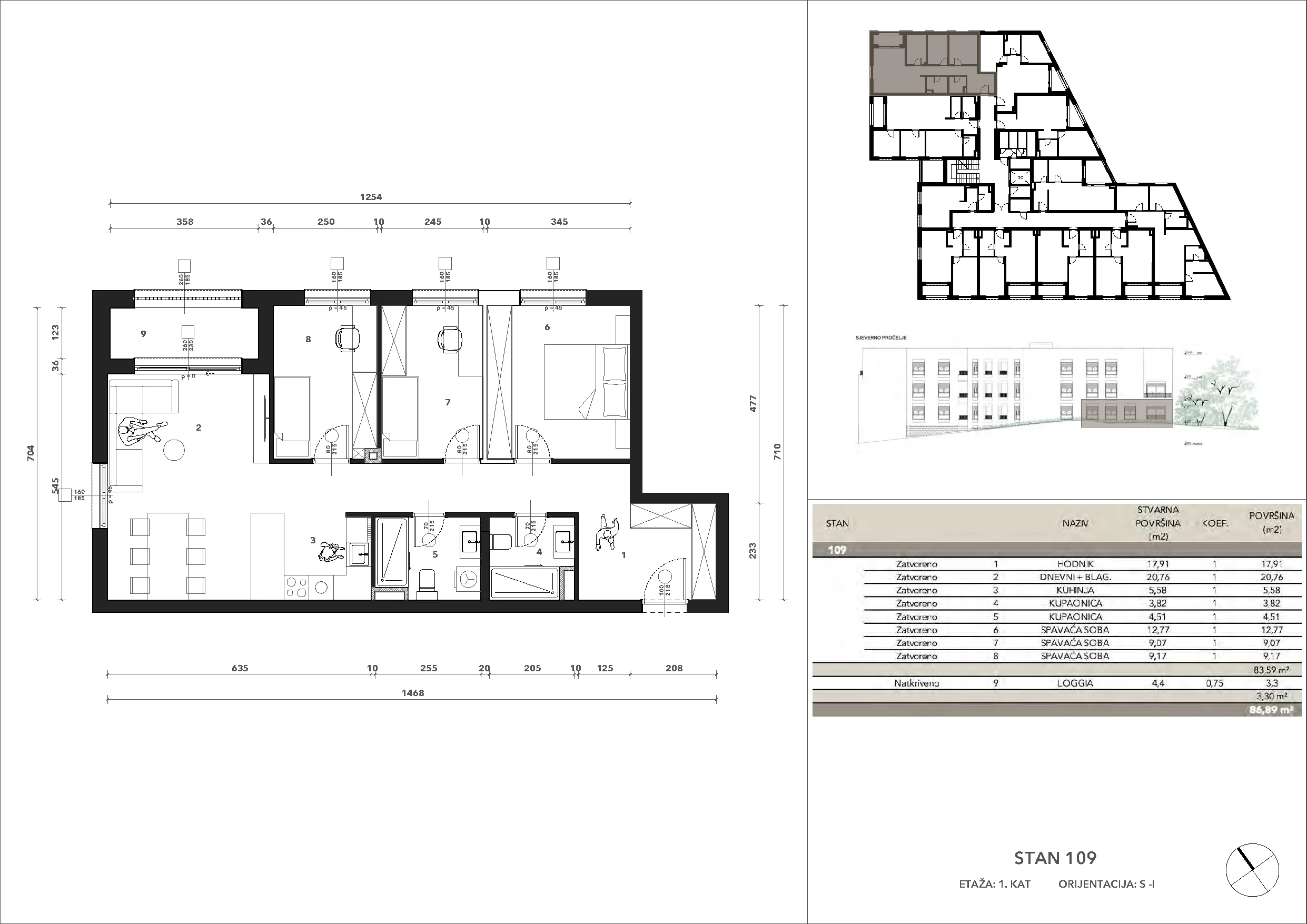
86,89 m2 // ćetverosobni // 1. kat // S-I
TLOCRT
POVRŠINE
| neto površina [m²] | neto obračunata površina [m²] |
|
| Vrsta | četverosobni stan | |
| Hodnik | 17,91 | 17,91 |
| Dnevni boravak + Blagovaona | 20,76 | 20,76 |
| Kuhinja | 5,58 | 5,58 |
| Kupaonica 1 | 3,82 | 3,82 |
| Kupaonica 2 | 4,51 | 4,51 |
| Spavaća soba 1 | 12,77 | 12,77 |
| Spavaća soba 2 | 9,07 | 9,07 |
| Spavaća soba 3 | 9,17 | 9,17 |
| UKUPNO | 83,59 | 83,59 |
| Loggia | 4,4 | 3,3 |
| UKUPNO | 86,89 |


